Vigo: Proyectos y Construcción

Paseando por Elduayen he sacado unas cuantas fotos del estado de varias obras.

El primero el edificio reformado por el Consorcio Do Casco Vello en Elduayen 39

El segundo de iniciativa privada En la confluencia con Porta do Sol, va lenta la cosa.

Con esto solo quedarían dos edificios por reformar justo al lado de este último y ya tendríamos toda la zona de Porta do Sol hasta Barrio do Cura reformada a falta de la finalización del túnel.

Y como bonus una actualización de Barrio do Cura. Aquí van a toda mecha. En una semana ya han hecho un forjado más y nuevos pilares

6 Me gusta

A sumar también el ansiado proyecto de reforma del Ayuntamiento de Vigo. Menudo cambio si queda así.

6 Me gusta

Me parecía más rompedor el de Moneo

2 Me gusta

Es cierto que el de Moneo era muy bueno en cuanto a la integración de la fortaleza pero sin embargo dejaba a la Panificadora totalmente encajonada. Come este nuevo proyecto, de dos estudios de arquitectura muy solventes, podemos arreglar bastante el edificio y además nos queda la Panificadora totalmente visible para su también (si todo va bien) pronta rehabilitación.

por cierto, hoy traigo unas obras del Vigo Vertical. Las nuevas rampas en la calle Pintor Lugris que van a muy buen ritmo:

7 Me gusta

Hoy en otro paseo os traigo una actualización sobre la nueva zona de Tomás Alonso.

El nuevo edificio en cooperativa terminado detrás de los de Avantespacia:



Aquí irá el nuevo edificio que construye avantespacia:




Y la otra parcela también en construcción en Esturáns también en cooperativa:



Con estos solo faltaría el que promueve el Concello para completar la urbanización de la zona.

6 Me gusta

He dado un paseo por el Casco Vello alto y este es el estado de la reforma de esta vivienda promovida por el Consorcio do Casco Vello y firmada por el estudio Castroferro

8 Me gusta

Y el pequeño boom de edificación que se aprecia en Canido se extiende a Samil, a precios no aptos para todos los bolsillos. Se trata de catorce viviendas, al lado del Supermercado Día, según informaba ayer Faro de Vigo. Se demolerá el chalet ubicado en la parcela.

Sigue un poco la tipología de las últimas promociones de Canido (tres-cuatro alturas), lo cual me parece bastante reconfortante en una ciudad castigada por mamotretos.

El PXOM plantea, creo recordar, un par de áreas con 3.000 viviendas en total en Samil, también de esa altura.

Entra en vigor el documento el 27 de agosto. Por fin.

Subo un par de infografías de la promoción de Samil:

Fuente: Faro de Vigo

7 Me gusta

Gracias por estas actualizaciones de Vigo !

1 me gusta

A mí juicio, algunas rehabilitaciones que se hacen hoy en día en Vigo son más propias del desarrollismo que del siglo XXI. Para muestra un botón. A mí me llevan los demonios.

Rúa Montero Ríos, 36. En plena zona portuaria de terrazas. El antes y el después. Pues ya me contaréis.

Fuente: Faro de Vigo

7 Me gusta

Licencia municipal (por fin) para Rúa Areal, 120.

Menuda zona para vivir el final de Rosalía y de Areal, en torno a Camiño Miragaia: céntrica, con servicios, edificaciones de obra nueva (lo que es bastante escaso en Vigo…)

Subo un par de infografías de la web de Hábitat. Me parece una chulada la promoción:

4 Me gusta

Suma y sigue en la zona de Canido con un nuevo proyecto residencial frente a la playa. Ahora mismo con los 4 terminados tenemos con este 2 más en proyecto/ejecucion.

4 Me gusta

Muy interesante el proyecto que comparte Juan83, porque lo que quedaba de la conservera Cerqueira (oficinas y almacén), en primera línea de playa, en Rúa Canido, se rehabilitará (la parte que está mejor) o se reestructurará (la zona peor conservada). Es patrimonio industrial, del año 1919, según he consultado. Esto se destinará a uso terciario, quizá hostelería.

Las viviendas van en otra zona, que no da a la playa. Ocupan otra antigua zona industrial, de menor interés y más reciente (de los años 50).

Y una pequeña zona ajardinada, al final.

En esta infografía de Faro de Vigo de hace unos días se aprecia bien:

4 Me gusta

Parece que teas recibir licencia urbanística esta semana pronto se pondrá en marcha esta promoción en Tomás Paredes que completará esa manzana junto con la torre que Viqueira ya está construyendo.

4 Me gusta

Qué raro que pongan tan poca altura. Va a quedar un área bien descompensada. Por la zona edificios de unas diez plantas y el mamotreto monstruoso de Viqueira al que haces referencia, justo enfrente de esa promoción nueva que comentas.

Es nada menos que esto que emerge de la nada:

No perder de vista esa rotonda de delirio pegada al gigantón.

Imagen de metropolitano gal

3 Me gusta

Con la esperada aprobación del PXOM parece que nos vamos a tener que acostumbrar a noticias casi semanales sobre nuevas promociones residenciales. Hoy nos llega esta en Teis.

3 Me gusta

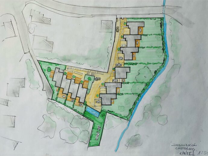
También en el extrarradio interior del municipio parece que se mueve la cosa. Esta promoción está en Castrelos, al lado de Rego da Barxa.

Imágenes de vigoe.es

5 Me gusta

Y esta sí es de gran importancia. Se trata de un nuevo barrio, con 2.300 viviendas, en la zona de la Avenida de Madrid (cerca de la antigua estación de autobuses). Impulsado por la Xunta, que por fin parece que las administraciones se han puesto manos a la obra en cuanto a la vivienda pública, ante el clamor ciudadano.

Se empezará en 2028, cuando ya la Avenida de Madrid estará concluida (esperemos que así sea).

Infografía de Faro de Vigo de ayer:

6 Me gusta

Otro proyecto de calado, a desarrollar en tres años. Quinientas viviendas o más, tal vez? El ámbito alcanza casi las cuatro hectáreas, y se permitirán hasta siete alturas. A priori tiene a mi entender varias cosas buenas y alguna que me escama:

-Se interviene en una de las múltiples bolsas de suelo pendientes de ordenar y urbanizar que hay en pleno casco urbano.

-Con un porcentaje de vivienda protegida razonable (30%). Ello permite no ahuyentar a promotores y da respuesta a la necesidad obvia de vivienda a precio no ya asequible, pero menos disparatado que la libre. Y 40% también sería razonable. Porque en los ámbitos del PXOM donde se piden 90% de vivienda protegida o similar (yo creo que Caballero lo hace de cara a la galería, para lucir grandes números de vivienda social que la iniciativa privada no va a asumir) pasa esto:

-Me llama la atención el elevado porcentaje de uso terciario de la promoción de Teis (55%) Está en las proximidades del Centro Comercial Travesía.

No sé, tengo la impresión que en el PXOM hay ya mucho uso terciario (Recaré, Cruceiro…)

3 Me gusta

A mi también me pareció rara la cantidad de uso terciario como dices a pocos metros de un centro comercial que no está pasando precisamente por su mejor momento. Está aportacion de poblacion le podría venir muy bien al centro comercial, pero con tanto uso terciario en la nueva urbanización no sé yo. Para mi no tiene sentido.

2 Me gusta

Añado dos noticias de nuevos residenciales en la ciudad. El primero en Vazquez Varela 28-30. Me da pena la perdida de patrimono en el ensanche en los ultimos años. En cosa de 5 años se habrán triado como mínimo 6 edificios que pese a no tener mucho valor, si que le daban un encanto a la zona que yo creo que ya ha perdido totalmente.

La segunda noticia es sobre la zona de Canido donde no paran de anunciarse promociones de lujo

3 Me gusta