Nuevo edificio ya en obras en calle Luis Carreras, en el barrio de las Delicias (junto a la famosa heladería Inma).
Edifício de obra nueva en Postigo de Arance. Personalmente, el diseño me parece algo anodino, y creo que no armoniza con los edificios colindantes.
Ni Plan Litoral, ni intercambiadores en la Marina o en la Estación, ni el Astoria, ni la Rosaleda, ni paseo marítimo de El Palo, ni centro de oficinas en Cortijo de Torres, ni ampliación del Palacio de Ferias, ni Guadalmedina…
“Olvidos” ![]()
Bonita y eufemística forma de llamar a “no voy a mover un dedo por hacerlos porque vivo de hacer anuncios”.
Por añadir algo de color al asunto, sí que ha hecho mención a otros proyectos de menor importancia pero que no vienen mal:
Me quedo con la incubadora de microelectrónica del PTA y La recuperación de la Cárcel de la Cruz del Humilladero para FP.
Edificio residencial Mazarí en Málaga
Endosdedos arquitectura
En el barrio malagueño del Molinillo, en el número 48 de la calle Duque de Rivas, se erige este bloque con siete viviendas. El proyecto toma el nombre de ‘mazarí’, que hace referencia tanto a un material cerámico como al horno artesanal utilizado para su fabricación, cuyo proceso de cocción puede durar una semana. En la cercana Vélez-Málaga, aún se conservan catorce de estos tejares históricos, cuya tradición se remonta al siglo XVI.
Fuente: Edificio residencial Mazarí en Málaga - Endosdedos arquitectura | Arquitectura Viva
Se agradece que hagan algo diferente al enésimo cubo blanco y negro
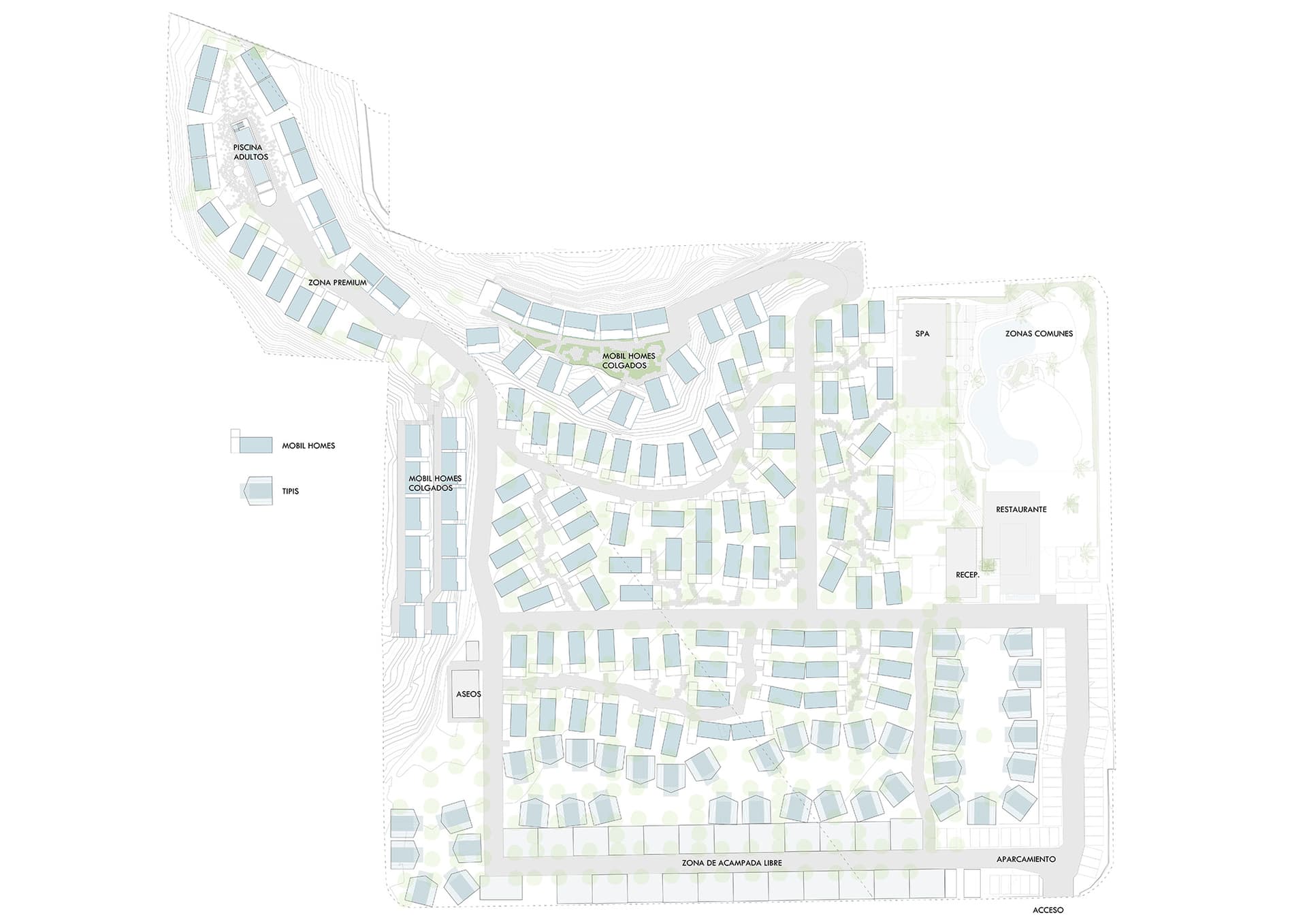
VACACIONES EN EL JARDÍN. COSTA DEL SOL GLAMPING VILLAGE POR CANOBARDIN + ESTUDIO CANO LASSO
Bajo el encargo de convertir el antiguo Camping Fuengirola en un nuevo referente turístico, los estudios Canobardin y Estudio Cano Lasso colaboran para transformar la parcela situada entre los municipios de Mijas y Fuengirola con su acogedor clima, en un jardín que le da la vuelta a la idea de camping atendiendo a todas las escalas arquitectónicas para generar, en medio de una vegetación exuberante, un espacio respetuoso de descanso.



















