Málaga-Costa del Sol: Área Metropolitana (Barrios y Desarrollos)

Lo que más rabia me da es la lapidación reciente de suelo en Málaga en tantos desarrollos unifamiliares.

Que tal vez en las zonas con pendiente está bien… ¿pero en municipios del área metropolitana, pegados a Málaga, del interior?

O la apuesta tan derrochadora de suelo que ha sido el PTA.

Málaga hizo urbanismo de Madrid o Sevilla cuando Málaga tiene el suelo que Bilbao o Barcelona.

1 me gusta

completamente de acuerdo , para mi los desarrollos que se plantean en santa tecla, ciudad aeroportuaria incluso distrito Z etc desaprovechan el suelo muchisimo, poca altura, mucho espacio que hará que la creacion de “barrio” sea dificil al tener poca densidad de población. Ademas el PTA siempre lo he dicho parece mas un “poligono” que una ciudad tecnologica, yo por ejemplo que soy ingeniero y trabaje ahi no volveria por nada, prefiero mil veces como estoy ahora en oficinas premium en madrid en el centro de la ciudad y tener todo cerca y a mano. En el PTA no hay nada y no me gusta y todo queda lejos.

2 Me gusta

El problema de Rojas Santa Tecla, Distrito Z, etc. es la “cercanía” del aeropuerto, excusa perfecta del Gobierno para boicotear las alturas (aunque no interfieran para nada…).

Lo que sí criticaría de Rojas Santa Tecla es el exceso de campos de golf y zonas verdes. Aún así, van cerca de 3.000 viviendas y me temo que ya son excesivas por la falta de infraestructuras (sin tren, sin Vial Distribuidor y con las carreteras ya de por sí muy saturadas).

Primer paso para ampliar Churriana hasta Alhaurín de la Torre con más de 200 viviendas

3 Me gusta

El futuro de Málaga está en Campanillas y Churriana, los dos distritos con más suelo pero peor conectados con la ciudad. Con la anterior Junta se promovió en mayor o menor medida su independencia de Málaga, así que el ayuntamiento debería “mimarlas” si no quiere verse con 50.000 habitantes menos como le pasó en su día con Torremolinos.

2 Me gusta

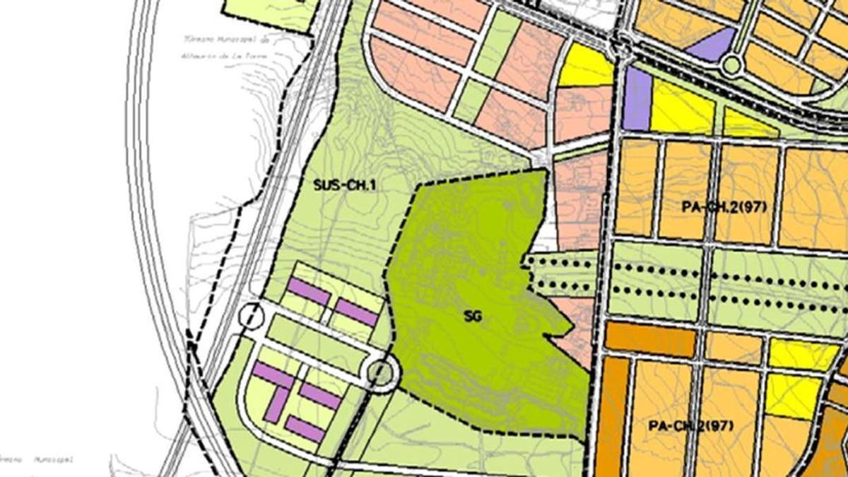
Churriana se extenderá hacia el oeste hasta Alhaurín de la Torre con un plan pare urbanizar el Camino Bajo de Churriana junto al Retiro

Fuente: Ayuntamiento de Málaga - Ficha SUS-CH.1 ‘Camino Bajo de Churriana’:
https://share.google/T3w9yuwWsl2C2X2Xf

1 me gusta
1 me gusta
1 me gusta

Alhaurín de la Torre

Los proyectos turísticos ya llegan hasta Alhaurín. Se recupera edificio y zona con casi 20 años sin uso.

2 Me gusta

Pues tiene buena pinta el edificio, a ver si vemos más cosas del diseño.

1 me gusta

Benalmádena

500 VPOs de la mano de Urbania.

1 me gusta

Para gustos colores. Esto es lo que hay construido:

1 me gusta

El render que ha salido a la luz:

1 me gusta

Alhaurín de la Torre

Proyecto de más de 20 millones, 60 viviendas.

1 me gusta

Pasé este fin de semana en Fuengirola, que es una localidad que no conocía (conozco fundamentalmente Marbella y Málaga).

Aquí algunas impresiones, a ver qué os parece:

  • Sonará ignorante, pero no me imaginaba (para bien) una localidad tan urbana, es una ciudad en mayúsculas. Me esperaba algo más suburbano.
  • El problema del Cercanías puede ser su capacidad, y la limitada extensión de la red, pero los días que he estado funcionó como un reloj, sin colas, llegaba puntual. Las estaciones limpias y en buen estado. También es febrero.
  • Aluciné con el cosmopolitismo que tenéis en Málaga, que ya lo conocía, pero siempre alucino. Llega a haber en Madrid una calle con dos locales suecos y una iglesia noruega y ya estaría copando titulares en grandes medios de prensa. Me encontré hasta una manifestación iraní pro-Shah, que es algo que yo no he visto ni en Madrid
  • Se notaba un ambiente estupendo y relajado. Pese a que muchos piensan que estos “guiris” suelen ser mayores que simplemente veranean, también había muchas familias “mestizas” a adoptadas, conocí unos cuantos y me parecía muy curioso (jóvenes de origen 100% danés que te hablaban con acento malagueño)

Cosas que yo mejoraría…

  • Desorden urbano generalizado, me dio esta sensación.
    • Inconsitencia generalizada de las soluciones de pavimento y contunidad del mobiliario urbano. Creo que iría bien marcar un mobiliario estándar (¿incluso llegar a algún consenso con localidades vecinas?) preferentemente simple. No entiendo la elección de bancos modernistas que no tienen ninguna relación con el lugar. Creo que es un error apsotar casi siempre por pavimentos complejos, mobiliarios recargados… es mucho más difícil generar espacios limpios y ordenados visualmente si tienes un despiece de suelo de tres colores, una farola fernandina, luego un banco modernista…
    • En la zona vieja se echaban en falta algunas directrices u ordenanzas que marquen una línea general de construir algo más coherente, aunque sean sencillas, pero alineadas con la forma de construir vernácula… tal vez limitando la paleta, o apostando por cubiertas de teja vieja, no sé…
    • Había un desorden en ¿el planeamiento?¿realidad urbana? que me llamó la atención. Altos entre usos tal vez problemáticos, zonas residenciales densas con descampados al lado, manzanas incompletas… Tal vez sería bueno que algunos equipamientos (como los deportivos y los educativos) se encontraran en zonas de transición con ejes y manchas verdes… y definir y dar continuidad a los ejes fluviales que atraviesan la ciudad, o dar alguna definición al encuentro con la montaña… no solo el marítimo tiene que ser la única opción de paseo de la zona… Tal vez quiero pasear poe el Arroyo Real o el Río de Fuengirola
  • La bajisima calidad de las esculturas en el espacio público, que se deban de bruces con esas realidad cosmopolita y vibrante de la Costa del Sol. Me pregunto si es posible pedir colaboración o consejo a instituciones culturales como la Academia de San Telmo, o el Museo de Málaga… colaborar con artistas malagueños de calidad, emergentes, etc. Suena chorra, pero puede que fuera lo más deficiente, más cutrillo, de todo.
  • Bueno, esta es una constante en la costa española, pero puede que en Málaga-Granada de forma particular, que es la obsesión “exotizante” en la jardineria. Que lo entiendo, y hasta punto no me parece mal, pero creo que no hay que olvidar a las especies iberícas, para apoyar así a la fauna… y en un contexto de aumento de las temperaturas y cambio climático, no apostar tanto por la espectacularidad de la vegetación y más, por ejemplo, por la capacidad de generar espacios a la sombra.
  • Muchos de los edificios de la primera línea no estaban en el mejor estado, no sé si es por las intensas lluvias que han intensificado los desperfectos
6 Me gusta

Otra cosa os diré: se nota que hay una inquietud real del Ayuntamiento porque todo estuviera cuidado y en orden, pero creo que los fallos suelen estar en el know-how, por ejemplo…

  • …quieren embellecer el espacio público, invierten un buen dinero en ello, pero fallan en la elección de mobiliario, en las soluciones o en los artistas para las piezas urbanas
  • quieren una “ciudad verde”, sin duda hay bastante arbolado y donas sorprendentemente bien cuidadas (especialmente si vienes de Madrid) pero fallaba el enfoque integral (por ejemplo, ejes verdes en los ríos y arroyos, completos) o grandes parques urbanos / perimetrales de transición con los montes
  • etc

Tal vez una Málaga que cada vez está desarrollando más músculo cultural, que está apostando por más calidad arquitectónica, tutele la evolución cualitativa de estas localidades.

Siempre me sorprende que pese al dinamismo de la Costa del Sol, hay muy pocos proyectos que llamen la atención en el colectivo de los arquitectos (más allá de las cifras de millones de las mansiones). En relación al total de la población, pareciera que hay más arquitectura de autor en Cádiz o incluso la Costa Tropical granadina.

4 Me gusta

Alhaurín de la Torre

Al menos 49 nuevas viviendas.

1 me gusta

Pizarra

Están casi todos vendidos ya.

6 Me gusta

Bien, una promoción con guiños a la arquitectura tradicional local… ¡bien!

6 Me gusta

Es que de verdad que no es tan complicado.

3 Me gusta