Este ya tiene unos años. Rocafort-Manso.
Los vecinos celebran la reforma de los Jardinets de Gràcia con una fiesta rumbera
Las obras han servido para ampliar el espacio peatonal, ganar vegetación y renovar su mobiliario urbano
Fuente: Els veïns celebren la reforma dels Jardinets de Gràcia amb una festa
Esos carriles bici son envidiables!
El barrio de la Trinitat Nova, en el distrito de Nou Barris, encara desde esta semana la fase final de las obras de urbanización de la calle Palamós. En concreto, el Ayuntamiento de Barcelona intervendrá sobre una superficie superior a 8.000 metros cuadrados, de los que cerca de un 30% se convertirán en una nueva zona verde. La actuación se concentra en la misma calle Palamós y en el interior de manzana que conforman los edificios de nueva construcción ubicados entre las calles Palamós, S’Agaró y La Llosa. Esta urbanización, añadida a las que ya se han realizado en la zona, da continuidad a la nueva fisonomía de la calle y supondrá la renovación total de esta zona.
La Comisión de Gobierno del Ayuntamiento ha aprobado definitivamente la reforma de la plaza de Flandes, en el barrio del Coll, un espacio que actualmente funciona como zona de paso para vehículos y peatones. Las obras servirán para transformar completamente la plaza, ampliando la zona de estancia, plantar más verde e instalar mobiliario urbano nuevo. En la plaza de Flandes confluyen tres calles: el paseo de la Virgen del Coll, la calle de Cartago y la de Clotés.
L’avinguda Roma inicia quatre anys d’obres per completar la pacificació
Els treballs entre Viladomat i Calàbria, al costat de l’edifici Estel, comencen ben aviat
Fuente: L’avinguda Roma inicia quatre anys d’obres per completar la pacificació
Diez ciudades del área de Barcelona logran 47 millones europeos para cohesionar sus barrios: “No hay precedentes”
El AMB pone en valor la financiación proveniente de la UE para atajar las necesidades sociales de los municipios metropolitanos
Espectacular
La pacificació de la Meridiana esborrarà el pont del Dragó i el gran mur de Sant Andreu
La tercera fase de la pacificació de la Meridiana salvarà els desnivells entre Nou Barris i Sant Andreu amb passejos verds en lloc de murs.
El Ayuntamiento anuncia la mayor inversión en mantenimiento urbano de Barcelona: 1.336 actuaciones por 200 millones
Los trabajos incluyen pavimentación de calles, mejoras de aceras, renovación de mobiliario urbano, alumbrado, parques y jardines, fuentes o semáforos, además de las escaleras mecánicas y ascensores en los barrios de montaña
El alcalde de Barcelona, Jaume Collboni, ha anunciado que el Ayuntamiento destinará 200 millones de euros en 2026 a obras de mantenimiento y mejora en 28 barrios de la ciudad, que incluyen 1.336 actuaciones: 1.300 de mantenimiento y renovación (160 millones) y 36 de transformación (40 millones), en el marco del Pla Endreça y del Plan de Mantenimiento Integral (PMI).
- 25 actuacions en 13 ascensors i 24 escales mecàniques
- 12 actuacions en estructures viàries, com ponts, passeres o pèrgoles, entre altres.
- 33 actuacions en clavegueram (obra nova)
- 67 actuacions en clavegueram (rehabilitació)
- 147 actuacions en voreres
- 80 pavimentacions
- 23 actuacions de millora i renovació de mobiliari
- 107 actuacions en parcs i jardins
- 173 actuacions per millorar i renovar la senyalització
- 71 en enllumenat
- 89 en fonts de beure i ornamentals
- 29 obres de millora de l’accessibilitat, com la retirada de pals elèctrics
- 453 cruïlles semaforitzades
Eixample
- La Sagrada Família: Plaça de Pablo Neruda
- Fort Pienc: Interior d’Illa de Clotilde Cerdà
- La Dreta de l’Eixample: Jardins de Constança d’Aragó
Sants-Montjuïc
- Font de la Guatlla: entorns del Turó de la Font de la Guatlla (Lotus, Gessamí, Begònia, Hortènsia i Pas de Valls), carrer de la Guatlla i carrer d’Amposta
- Sants-Badal: plaça de l’Olivereta
- Hostafrancs: carrer del 26 de gener
- La Bordeta: carrer de Mossèn Amadeu Oller
Les Corts
- La Maternitat i Sant Ramon: Jardins de Bacardí
- Pedrables: barri de la Mercè
Sarrià-Sant Gervasi
- Sarrià: Riu de l’Or
- Sant Gervasi – Galvany: plaça Adrià
- Sant Gervasi – la Bonanova: carrer del Císter
- El Putxet i el Farró: carrer d’Escipió
Gràcia
- El Coll: carrer de Pere Llobet, cruïlla de Ceuta/Tirso/Santuari, plaça de Flandes
- El Camp d’en Grassot i Gràcia Nova: jardins de Caterina Albert
Horta-Guinardó
- Montbau: Carrer de la Poesia
- Vall d’Hebron: interior d’Illa del carrer de Juan de Mena
Nou Barris
- Ciutat Meridiana: Aqüeducte de Can Cuiàs
- Porta: carrer de Santapau, carrer d’Emili Roca, carrer de Desfar
- La Prosperitat: carrer de Flor de Neu
- Vilapicina i la Torre Llobeta: carrer de la Jota, carrer d’Amílcar
Sant Andreu
- Sant Andreu: carrers de Sant Narcís i de les Roquetes, carrer de Sant Hipòlit
- La Sagrera: carrer de les Açores
Sant Martí
- Poblenou: fase 2 del carrer del Taulat
Ciutat Vella
- Sant Pere, Santa Caterina i la Ribera: Passeig Lluis Companys; Carrer d’Ortigosa
- El Gòtic: Carrer Julià Portet, Baranes Villa de Madrid
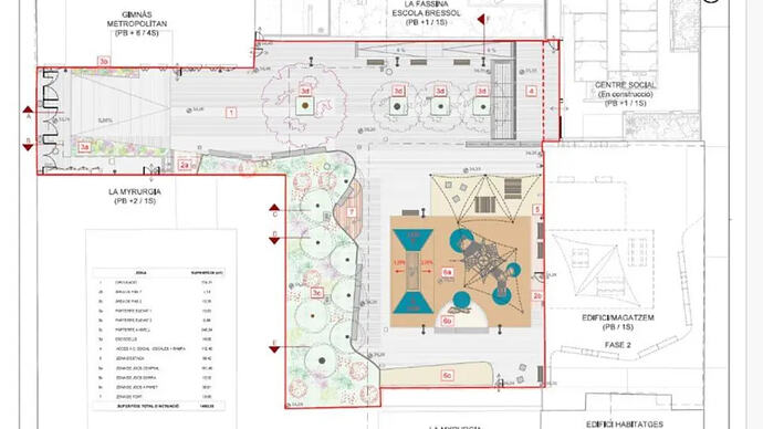
Luz verde a la remodelación de los Jardines de Beatriu de Provença con más zonas verdes y juegos
La intervención, situada en el barrio de la Sagrada Familia, cuenta con un presupuesto de casi un millón de euros y tiene como objetivo transformar este espacio de 1.463 metros cuadrados
Fuente: Luz verde a la remodelación de los Jardines de Beatriu de Provença con más zonas verdes y juegos
Madre mía, se va a quedar Barcelona sin coches a este paso ![]()
Barcelona estudiará medidas para pacificar más de 200 escuelas
El Ayuntamiento evaluará los entornos de los centros educativos donde no se ha actuado en la última década para realizar mejoras que garanticen la seguridad vial y la confortabilidad de estos espacios
Fuente: Barcelona estudiará medidas para pacificar más de 200 escuelas
Empiezan las obras de instalación de rampas mecánicas en la calle Poesia, en el barrio de Montbau
- El proyecto supone una inversión de 7,34M€ y mejorará la movilidad y accesibilidad en una calle con una pendiente sostenida del 10%
- Las obras se prevé que durarán 18 meses e incluyen la ampliación de las aceras y la mejora de la iluminación de la calle
Badalona
Adiós a la “autopista” urbana: Badalona inicia la transformación de Alfons XIII en un gran paseo verde
Las obras cuentan con una inversión de seis millones de euros para unir los barrios de Artigues, Sant Roc y Sant Mori de Llefià, reduciendo carriles y ganando espacio para el peatón
Una reformita no le viene mal.




























