Tiene guasa que quienes promueven estas cosas sean los que más recelan de lo soviético.
Si me dicen que es prefabricado me lo creo.
Y la misma guasa ocurre a la inversa; quienes más desean lo soviético, más recelan de estas cosas.
¿Quiénes son esos? ¿nos los han presentado?
Palatino Residencial, promovido por Bankinter Investment y Vía Ágora, impulsa 565 viviendas de alquiler asequible en Valdebebas
Los complejos residenciales tendrán una superficie construida de 47.311 metros cuadrados y dispondrán de servicios como gimnasio, sala polivalente y zonas ajardinadas. Actualmente se encuentran en proceso de obtención de licencias para iniciar las obras, que se prevén iniciar el próximo mes de enero. Con ello, la entrega de los pisos se estima para el primer semestre de 2028. Los inmuebles se ubican en una zona estratégica y bien comunicada, a escasos minutos del aeropuerto de Madrid-Barajas Adolfo Suárez, y rodeada de amplias avenidas, zonas verdes, espacios deportivos y de ocio. El proyecto refuerza el compromiso con la vivienda asequible en entornos urbanos de alta calidad.
Asequible empieza a tener el mismo rigor semántico que comunista y fascista.
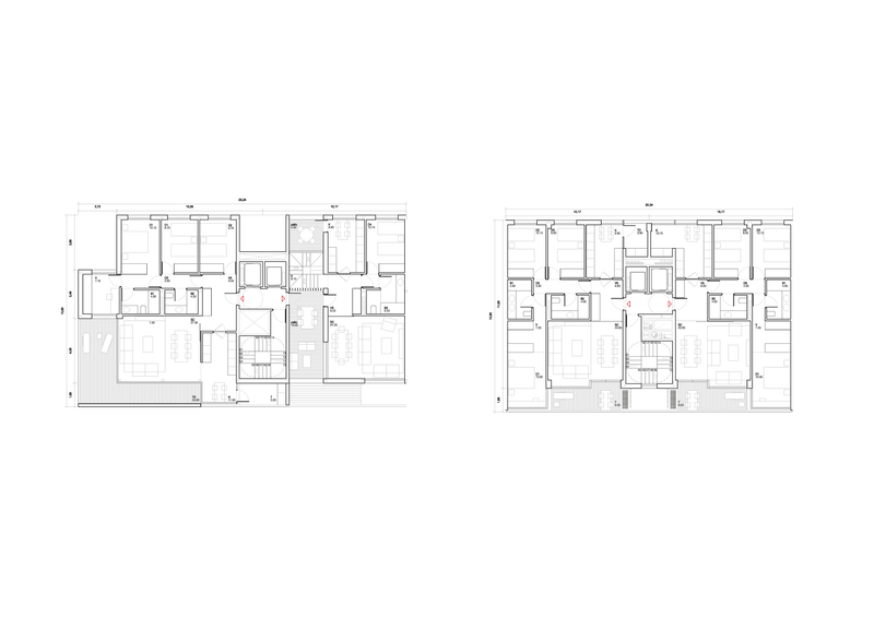
Promoción de VALENOR que ha diseñado Burgos y Garrido. Las imágenes son de Imagen Subliminal.
Fuente: Viviendas Valdebebas — Burgos & Garrido arquitectos
El otro día pasé por Valdebebas y me sorprendieron las luces del barrio.
Son bastante más cálidas que las que hay en otros barrios y las que están reemplazando (por ejemplo en castellana)
Yo prefiero ese color cálido amarillo
Joder, ASÍ SÍ.
Vaya cacho promoción, quien la pillara.
Terrazas reales grandes, cocinas amplias separadas…
Está mucho mejor que la mayoria de promociones, tamaños cómodos, distribuciones apropiadas (bueno, se les ha colado una vivienda en la que entras al comedor a pelo, sin recibidor pero es de muy buen tamaño y la cocina es generosa y está separada
)
Ah y por los planos compartidos los baños no tienen ventanas, ni siquuera los de los extremos. No deben ser muros de carga porque en las mismas fachadas hay ventanas así que creo que era practicable.
Vuelvo a decir lo de antes, se nota cuando hay alguien solvente al volante y no mediocres. La calidad arquitectónica y la habitabilidad de muchas viviendas actuales es subterránea.
Eso es un terraza.
Ostras, es verdad. Ya me parecia raro.
Y ahora, es incluso más raro.
Esta fachada está genial, me gusta mucho. Las otras son más normalitas.
Pero es cierto que se nota más nivel en esta promoción.
No estoy seguro de que lo construido de momento encaje con el render.
Ojalá los PAU con edificios residenciales así, sin pretensiones, correctos y modernos.
Las zonas verdes con el tratamiento de Valdebebas y los nuevos equipamientos con los procedimientos de diseño que podemos ver en Cataluña, Andalucía o Baleares (o Alemania, Francia, Reino Unido…).
Quitas 2 o 4 carriles en las calles más grandes, peataonalizas algunas más pequeñas, plantas varias hileras de árboles más… y los PAU pasan a ser, con todas sus pegas, barrios infinitamente mejores y más agradables.
No parece tan díficil, ni mucho menos, imposible.
Alarma en Valdebebas por el aumento de los robos en obras: “Se llevan lo que pueden, desde maquinaria a cableado eléctrico”












