Comentar que esta semana se ha realizado la visita al Palacio de Sueca para preparar la oferta de la licitación.
He podido verlo por dentro y hay mucho trabajo por hacer, se invierten 11.453.567,38 € con un plazo de obra de 19 meses. Pidieron expresamente no compartir fotos de la visita públicamente, pero adjunto alguna del propio proyecto.
Para que os hagáis una idea el estado actual de las plantas bajas es este.
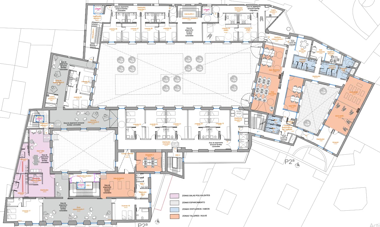
En planta el edificio quedará de esta manera.
-
Como sabemos tiene un grado de protección bastante alto con detalles como que las antiguas escaleras y barandillas serán desmontadas, rehabilitadas e instaladas de nuevo.
-
La obra es un lío, el único acceso es la puerta principal de la Calle del Duque de Alba.
-
Ferrovial toco parte de la estructura, fachada, cubiertas y carpinterías, el resto esta por hacer.





