Cercanías de Madrid

El fondo de la noticia ya está más que comentado.

Que los periodistas escriban como la mierda no es un dedo.

No es posible que hace quince años, dos administraciones (también como ahora de distinto color político) fueran capaces de presentar un plan de cercanías que aún hoy han sido incapaces de poner en marcha.

7 Me gusta

Pasando por Recoletos he visto este cartel. 5 años de obras que supuestamente terminan este mes

9 Me gusta

Yo también lo vi, es vergonzoso, la estación sin haberse inaugurado parece ya antigua

No he visto algo así nunca. Entre eso y el parking de Recoletos el paseo parece un campo de guerra y no el barrio mas caro de España (casi 9.000€/m2…)

3 Me gusta
6 Me gusta

Adjudicado hoy.
DIA del «Estudio informativo: Cercanías de Madrid. Actuaciones de mejora de la funcionalidad del tramo Hortaleza-San Fernando de Henares».

BOE: https://boe.es/boe/dias/2024/05/21/pdfs/BOE-A-2024-10221.pdf

Actuaciones:

Estudio informativo: https://www.transportes.gob.es/ferrocarriles/estudios-en-tramite/estudios-y-proyectos-en-tramite/estudio-informativo-cercanias-de-madrid-actuaciones-de-mejora-de-la-funcionalidad-del-tramo-hortaleza-san-fernando-de-henares

11 Me gusta

Aleluya, ya era hora.

1 me gusta

Porfin la C-2 dejara de ser un tramo duplicado de la C-8.

3 Me gusta

Una buena noticia, que además también supone un pequeño pasito hacia el futuro eje transversal (aún sigo teniendo esperanzas de verlo algún día…).

6 Me gusta

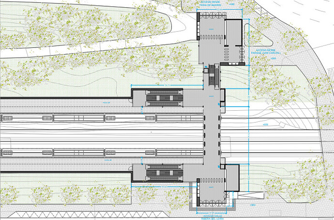
Campo de las Naciones Alt. 1









Campo de las Naciones Alt. 2











Rejas Alt. 1








Rejas Alt. 2 (Antigua estación de O’Donnell)









En alta calidad: https://cdn.mitma.gob.es/portal-web-drupal/estudios_en_tramites/hortaleza_san_fernando_de_henares/4_estaciones_hortaSF.pdf

17 Me gusta

Me gusta que vayan a cuadruplicar las vías en Campo de las Naciones dejando dos vías pasantes para los servicios de Media Distancia, Regionales, Civis y mercancias.
Respecto a la estación de Rejas me parece mejor la segunda opción al estar más centrada respecto a la población del barrio de Rejas, más cerca del C.C. e incluye más vías para servicios pasantes. Aunque es cierto que esta ubicación no plantea una conexión con el Metropolitano y parece mucho más complicada realizarla al estar más separada y tener que pasar sobre el nudo de la M40, M14 y M21

3 Me gusta

Si no me equivoco, estas son las ubicaciones de las nuevas estaciones.

Entiendo que Campo de las Naciones 2 se hará compatible con un futuro Eje Transversal (?)

3 Me gusta

Campo de las Naciones solo tendrá 1

Hay 2 porque son alternativas, quizás debí de especificar eso :sweat_smile:

1 me gusta

Aaah, vale, ya decía yo que solo estaban planeadas 2 estaciones en ese tramo.

Sigo con curiosidad sobre el eje transversal, he encontrado que en 2021 se formalizó el contrato para actualizar el estudio informativo, pero no encuentro nada más, ¿alguien sabe algo?
https://www.transportes.gob.es/el-ministerio/sala-de-prensa/noticias/jue-03062021-1247

1 me gusta

Según la web de contrataciones del Estado, el plazo de ejecución era de 24 meses y no se ha publicado ningún documento de prorroga a ese plazo, así que el informe debe andar por algún cajón del ministerio desde mediados del año pasado.
https://contrataciondelestado.es/wps/portal/!ut/p/b0/04_Sj9CPykssy0xPLMnMz0vMAfIjU1JTC3Iy87KtUlJLEnNyUuNzMpMzSxKTgQr0w_Wj9KMyU1zLcvQjXSITs0x8nY2dqiycAoKcKqJM8rxUDdJtbfULcnMdAVCNQEM!/

2 Me gusta

He estado leyendo un poco por encima la memoria del estudio informativo y las alternativas que escogen son la 1º en Campo de las Naciones, y la 2º en Rejas.

También parece que se van a reordenar las circulaciones al menos entre Torrejón y San Fernando:


Por lo que a menos que se haga otro salto de carnero se van a seguir produciendo cizallamientos pero en otro lugar.

4 Me gusta

La de campo de las naciones 1 es más a la izquierda. Más o menos en tu mapa sobre el punto donde se cruza la vía de cercanías con la raya de la línea 8 de metro.

2 Me gusta

No sé ni cómo hice el mapa el otro día. Estas son las alternativas.

De ejecutarse Rejas 2, creo que sería lo propio mejorar los accesos desde la estación hasta el barrio de Ciudad Pegaso.

3 Me gusta

Menos mal que han optado por las que, desde mi punto de vista, eran las mejores opciones. La alternativa 1 en Campo de las Naciones para poder hacer una posible conexión con el metro en Feria de Madrid. Y la alternativa 2 en Rejas, más o menos donde la antigua estación. Y además las dos más alejadas por si en algún momento se plantea hacer una parada en Canillejas.

3 Me gusta

Lo suyo es hacer Rejas 1 y Rejas 2, que hablamos de barrios totalmente desconectados de las grandes redes de transporte de la ciudad.

1 me gusta