MIVAU anuncia el ganador y finalistas del Concurso de Proyectos con intervención de Jurado para el comisariado de la web de La Casa de la Arquitectura
- El primer premio, dotado de 15.000 euros más IVA, ha correspondido al lema “Más allá de la casa”, presentado por el equipo Bartlebooth S.C.
- Se selecciona así la propuesta más adecuada para impulsar la estrategia digital de La Casa de la Arquitectura, haciendo realidad la constitución de un órgano clave para alcanzar el cumplimiento de los fines de la Ley de Calidad de la Arquitectura
Iñaqui Carnicero: “La Casa de la Arquitectura no está dirigida únicamente a un público especializado; su punto de vista engloba a toda la sociedad”
Hace un año nació La Casa de la Arquitectura con la ilusión de convertirla en un inmenso escaparate de la arquitectura en un lugar tan estratégico como el Paseo de la Castellana. Nos introducimos en este nuevo icono de la escena madrileña de la mano de Iñaqui Carnicero, Secretario General de Agenda Urbana, Vivienda y Arquitectura.
Es un espacio maravilloso. Animo a que la gente se acerque a conocerlo.
Hacen visitas guiadas periódicamente, creo que una hora antes del cierre. Si os pilla, ¡recomendable!
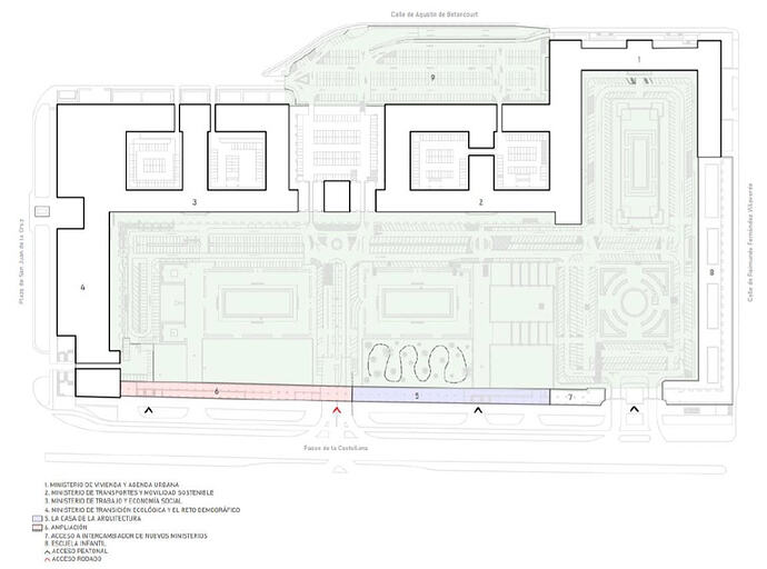
Arquitectura y la rehabilitación del entorno de Nuevos Ministerios
El Ministerio de Vivienda convoca un concurso de proyectos con jurado para ampliar la sede de la Casa de la Arquitectura y renovar los espacios exteriores del complejo de Nuevos Ministerios, en Madrid.
Ojalá ese estudio para el aparcamiento subterráneo sea productivo y podamos ver convertida la lonja en un señor jardín y dignificado el patio de honor.
Sería una gran mejora en un entorno en el que no sobran las zonas verdes.
Hay mucho por ganar:
Concurso de proyectos para la ampliación de La Casa de la Arquitectura y Plan Director de los espacios exteriores del complejo de Nuevos Ministerios
El Ministerio de Vivienda y Agenda Urbana (MIVAU) ha convocado un concurso para ampliar el espacio que ocupa La Casa de la Arquitectura en las conocidas arquerías del edificio, así como rehabilitar los espacios exteriores del complejo de Nuevos Ministerios.
El objeto del concurso de proyectos es la selección de la propuesta, para la ampliación de La Casa de la Arquitectura y la redacción de un plan Director de los espacios exteriores del Complejo de Nuevos Ministerios, que se seleccionara por su calidad arquitectónica, funcionalidad, soluciones bioclimáticas y de sostenibilidad adoptadas, así como por su viabilidad técnica, constructiva y económica.
Ojalá implique eliminar muchos de los aparcamientos en superficie.
Esto supone tener una auténtica Casa de la Arquitectura como Museo Nacional para España.
Me parece un lugar magnífico y una institución que la verdad ha sido creada de una manera excelente. Yo aprovecharía para que al equipo ganador le dejen construir un pequeño pabellón, tipo auditorio, tipo cafeteria, en el jardín interior y que se pueda lucir con una arquitectura de nivel para la institución. La verdad que en esto le tenemos que estar bastante agradecidos a Iñaqui Carnicero.
Solo falta que la Ley de Calidad, que está detrás de todo esto, tenga más concreción e implicaciones reales en los procedos de adjudicación y demás de obras públicas. En ese sentido fue una gran decepción.
Bien planteada, estaríamos viendo lo que hace Cataluña pero en toda España. Madrid sería la más beneficiada.
Buena noticia, La Casa de la Arquitectura es una chulada. A ver cómo gestionan la ampliación porque si luego pretenden hacer un parque (o lo que sea que no sea aparcamiento) si taponan demasiado esa parte puede quedar poco permeable a Castellana.
Y lo hemos dicho 200 veces pero se dirá una 201, qué vergüenza que un Ministerio de Transporte y MOVILIDAD SOSTENIBLE sea esto:
Y en una de las zonas mejor comunicadas de Madrid… espero que ese Plan Director solucione todo esto aunque que sea un plan en vez de una remodelación directamente me escama un poco. Que ya sabemos luego el caso que se les hace (hola Plan Director Ciclista de Madrid)
Llamemos a Campo Baeza para que genera una sala capitular arbolada como la de Almería, solo que adaptada a nuestro clima ![]()
Fuente: 2000 PLAZA DE LA CATEDRAL, Almería - Alberto Campo Baeza
Mirad que ministerial, si parece Berlín ![]()
Aunque hablando de Berlín… Cuidado con el Bundeskanzerlamt.















